Galeries Modernes
Originally built in 1957 in central Rotterdam by renowned architects Van den Broek en Bakema, Galeries Modernes was a prime example of the Reconstruction era architecture of the city. The renovation of Galeries Modernes proposed by KAAN Architecten refers to and respects the basic architectonic principles of the original Broek en Bakema design. Strong volumes with deep setbacks in a primarily horizontal composition and sharp canopies are original qualities which are reinterpreted and translated into a contemporary building.
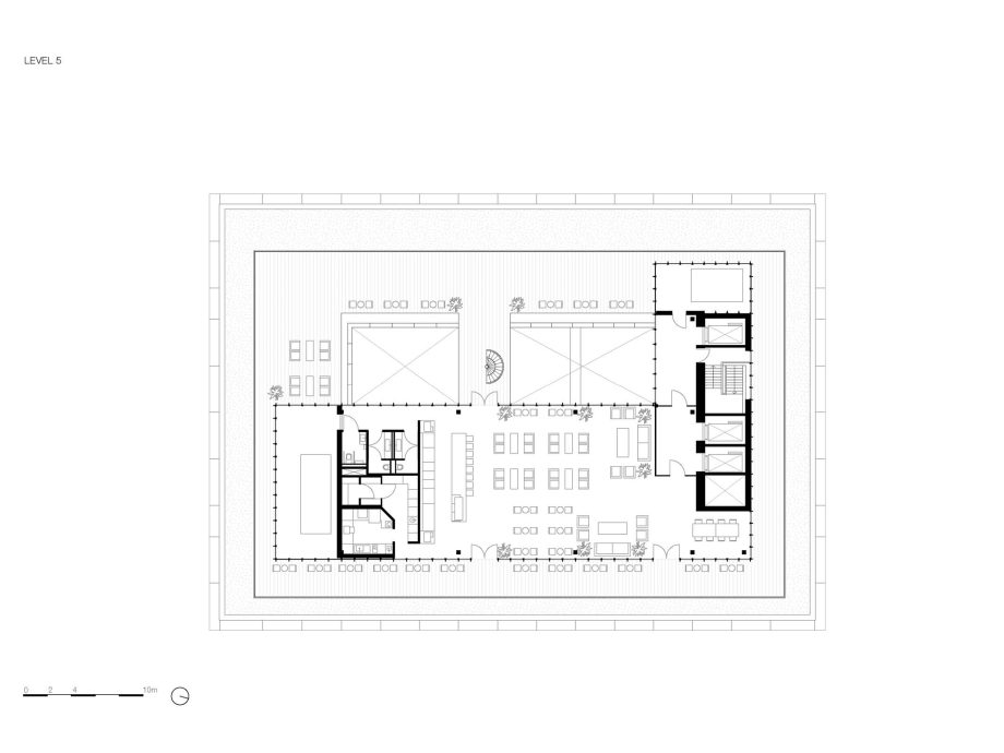
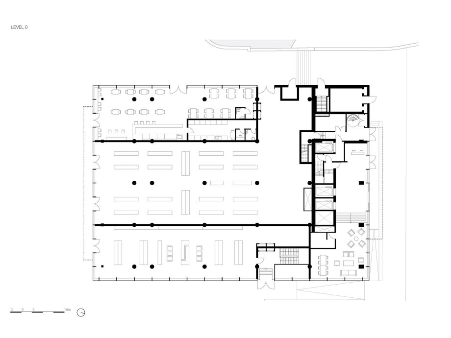
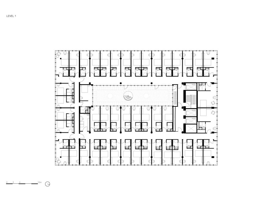
The existing concrete structure of the building is kept intact, while an extra level is added on top. Retail will be situated on the ground floor and a hotel with 180 guest rooms on the floors above. The façade design is equivalent on all sides of the building with a transparent plinth of big glass panels resembling the rhythm of the original façade. Above the plinth, a glass box and natural stone volumes follow in a horizontal alignment. Few carefully chosen materials manifest in a natural yet elegant ensemble. Inside the building, a patio brings light and greenery into the hotel. Finally, on top of the 5th floor, there is a terrace and a pavilion, surrounded by a green roof from where amazing views over the city centre of Rotterdam can be experienced.













