Rijnstraat 8

Location
The Hague, NL
Client
Rijksvastgoedbedrijf
Initiated
2012
Size
100.000 sqm
Project Team, Photos & Collaborators
Bas Barendse, Dante Borgo, Dennis Bruijn, Timo Cardol, Marc Coma, Sebastian van Damme, Marten Dashorst, Mitesh Dixit, Paolo Faleschini, Raluca Firicel, Cristina Gonzalo Cuairán, Marlon Jonkers, Kees Kaan, Jan Teunis ten Kate, Marco Lanna, Yinghao Lin, Aimee Mackenzie, Giuseppe Mazzaglia, Lorenzo Meschini, Gyeong Oh Chung, Vincent Panhuysen, Nerea Pinedo Painou, Ismael Planelles, Ana Rivero Esteban, Dikkie Scipio, Christian Sluijmer, Maria Stamati, Joeri Spijkers, Maria Vlagoidou, Noëmi Vos

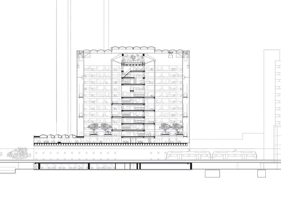
Rijnstraat 8 is an imposing structure next to the central station of The Hague. Originally designed by Jan Hoogstad as a ‘work space of equality’ for the former Ministry of VROM, the 1992 building was introverted and quite lifeless from the outside: a rigid core connected cold atriums and five slabs with blind façades. The offices had a repetitive layout, all oriented towards the atrium.
The renovation project opened up Rijnstraat 8 with new glass façades and bright rooftops, while the core and atriums work as a single system. The building has become vibrant and user-friendly for both tenants and neighbours, and a state-of-the-art workspace for thousands of government employees.
Positioned at an urban entry point to the city, the building now defines that experience. Inside, the lobby is an eye-catcher with ambience. Congress facilities and cafés enliven the four lower levels with a sequence of public interiors. The upper levels are more private offices that have been opened up by pulling down the corridor walls and introducing comfortable, spacious, high-ceiling work areas with natural light and views out over the city.