news
Menu
Menu
News
Projects
Office
Academic
Videos
Contact
MINUTES
Search
All
Type
Commemoration
Culture
Education
Healthcare
Highrise
Infrastructure
Institutional
Office
Preservation
Public
Research
Residential
Retail
Sport
Urban
Date
1987 - 1999
2000 - 2005
2006 - 2009
2010 - 2012
2013 – 2014
2015 - 2016
2016 - 2017
2017 - 2018
2018 - 2019
2019 - 2020
2019 - 2022
2020 - 2021
2021
2021 - 2022
2022 - 2023
2023 - 2024
2024-2025
Location
International
Netherlands
CLAUS EN KAAN
All
Type
Commemoration
Culture
Education
Healthcare
Highrise
Infrastructure
Institutional
Office
Preservation
Public
Research
Residential
Retail
Sport
Urban
Date
1987 - 1999
2000 - 2005
2006 - 2009
2010 - 2012
2013 – 2014
2015 - 2016
2016 - 2017
2017 - 2018
2018 - 2019
2019 - 2020
2019 - 2022
2020 - 2021
2021
2021 - 2022
2022 - 2023
2023 - 2024
2024-2025
Location
International
Netherlands
CLAUS EN KAAN
Process
Color
Black
Blue
Green
Red
White
Yellow
Types
Repetition
In Progress
Light
Material
Nature
Night
Repetition
Urban Landscape
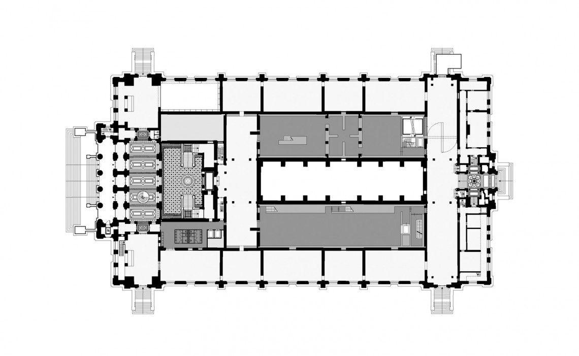
Royal Museum of Fine Arts - Antwerp