Crematorium Heimolen
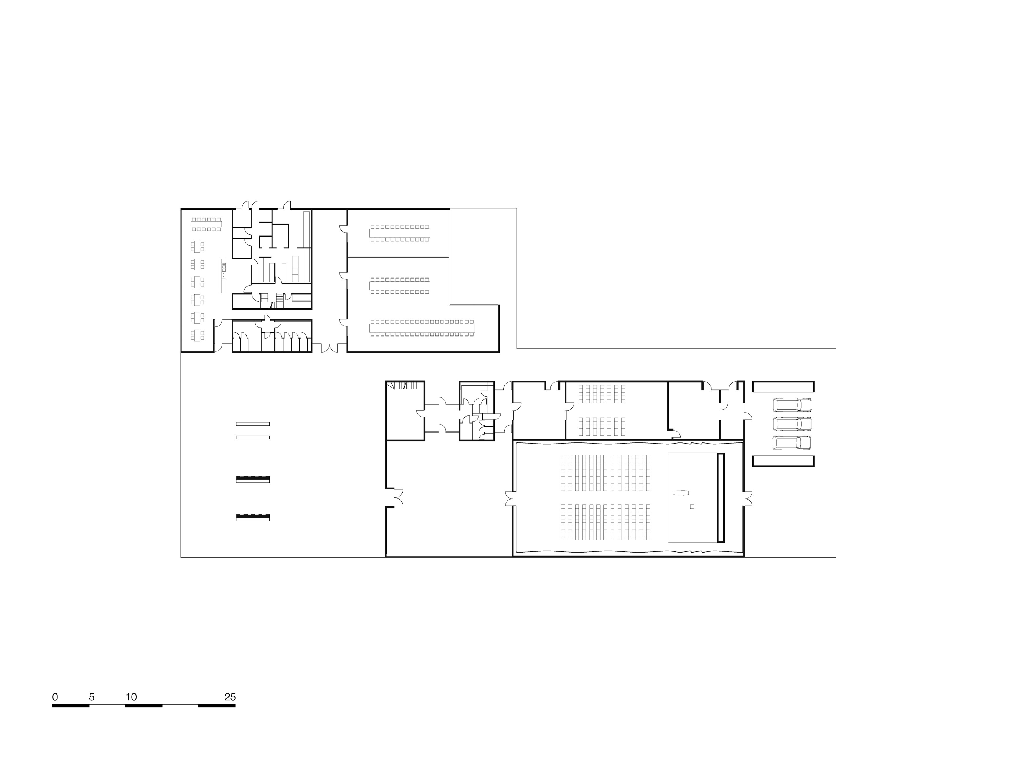
The ensemble for the crematorium in Sint-Niklaas is two buildings: a ceremonial and a technical one (the crematorium proper). The two buildings have the same area in footprint but have two different programmes with inverted design solutions. The technical building is a volume on a clean platform; the reception building is dominated by a roof that wraps and embeds public functions.
Emptiness, space and clarity predominate in the ceremonial building. A large window offers a contemplative view of the cemetery and landscape, the floor-to-ceiling doors give the room a dramatic quality, and the perforation of the ceiling with round lights reinforces the solemn atmosphere. The use of natural stone and wood enables concentration and contemplation.
The actual crematorium building owes its character to the façade composed of concrete cassette tiles, with a spread of circular perforations in the ceiling that accentuate the beautiful simplicity of the box without revealing the activities of the interior.










