Skip to content

De Vrijdag Cultural Centre

Location
Groningen, NL
Typology
Culture
Date
2021
Size
6,800 sqm

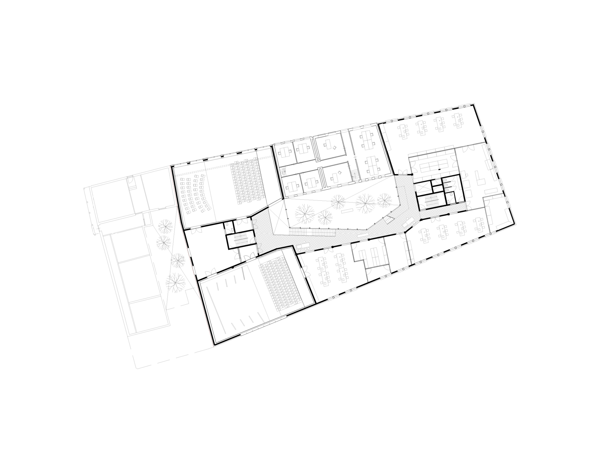
Located in the city centre of Groningen, this project aims to offer an urban living room for local residents as a place for creativity that is accessible, cosy, and full of entertainment. De Vrijdag Woonkamer (Dutch for ‘the living room’) replaces a large part of a 16th-century urban block, situated between historically significant monuments and the new urban landmark of the Groningen Forum.

The project creates a ‘twist’ in the traditional brick architecture: through large openings in the facade, the city can view all the creative activities within. Behind the modest and rational facade, the entire ground floor opens up and provides a clear route to the Forum. At the same time, it creates a more intimate atmosphere that embraces the inner garden and the historical monuments. This inner patio connects to the Vrijdag offices, while the garden and the monumental facade also form a memorable and relaxing backdrop for the Living Room. From the ground floor, one can move around the entire building via a series of open staircases with a clear view of each floor’s activities. Due to the irregular shape of the patio, the otherwise monotonous corridors are divided into several triangular meeting areas, creating spaces for encounters and creativity.

Info

Location
Groningen, NL
Date
2021
Size
6,800 sqm
Client
Gemeente Groningen and Vrijdag Groningen
Team
Dikkie Scipio,Frane Stancic, Hana Mohar, Kees Kaan, Vincent Panhuysen, Yang Zhang