Skip to content

Education Centre Erasmus MC

Location
Rotterdam, NL
Typology
Education
Date
2004–2013
Size
34,000 sqm

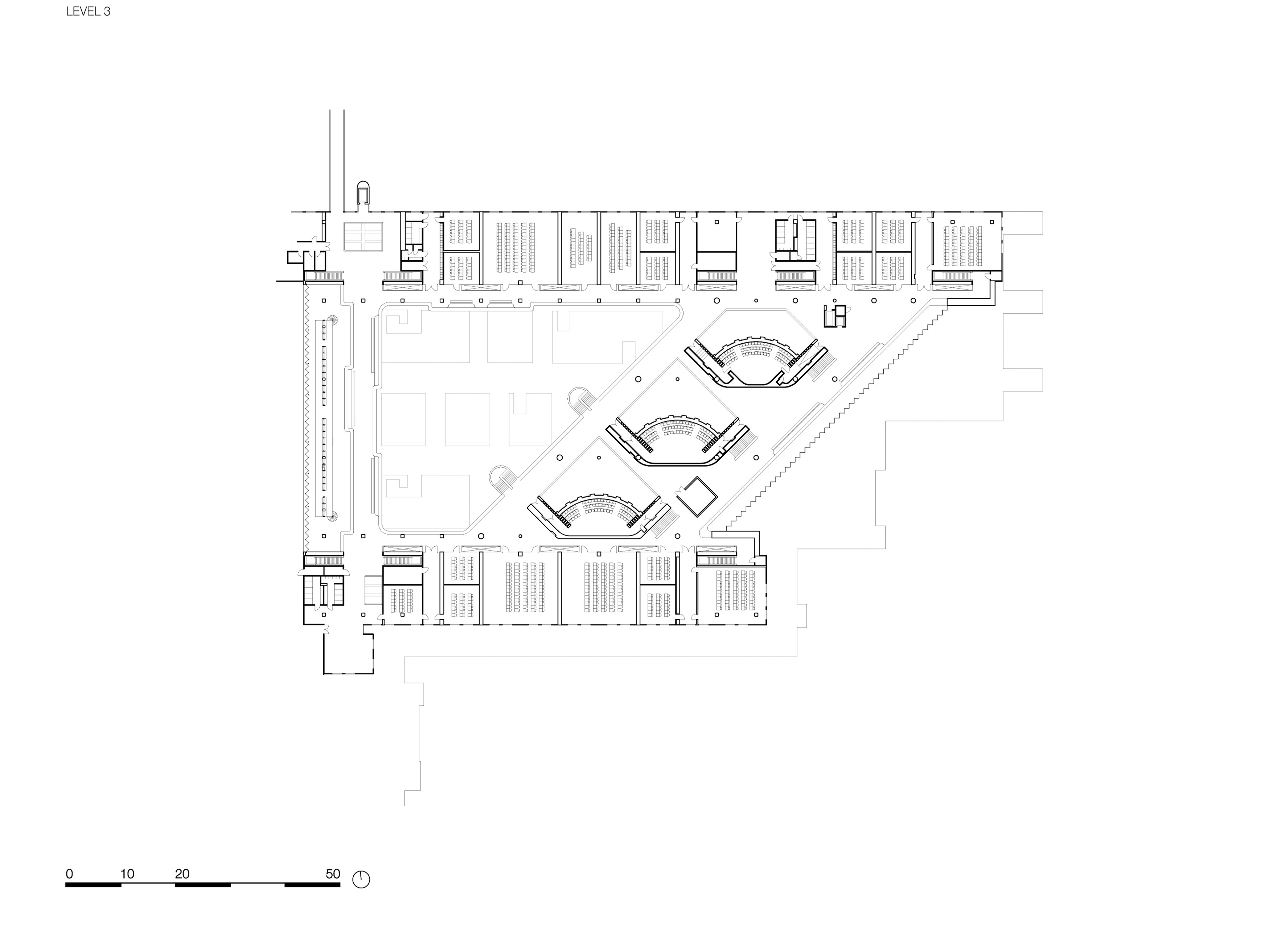
The Education Centre is now the heart of Rotterdam’s renewed academic hospital Erasmus MC, designed in the 1960s by Arie Hagoort (OD205) in collaboration with Jean Prouvé. The design transforms a neglected paved courtyard and an existing low-rise building into a lively atrium that connects various new educational spaces.

The main space is designed as a ‘library’ landscape where students from all medical disciplines can come together. The walnut-clad Education Square contains ensconced study islands. The square spills over into the foyer, complete with a service counter, a sitting area overlooking the city and a large outdoor terrace. A 35-metre long and four-storey-high bookcase wall borders the square on one side, while passageways along the other side provide access to refurbished lecture halls and new seminar and thesis defence rooms on the upper floors. Sculptural concrete staircases rise from the passageways – remnants of the previous construction, once outside and now part of the interior.

The new Education Centre is spanned by a large, column-free, glazed roof that continues the diagonals of the existing construction. The roof provides daylight through clusters of triangular skylight and regulates the dispersion of noise, which aids the learning landscape and gives it a distinct feel.

Info

Location
Rotterdam, NL
Date
2004–2013
Size
34,000 sqm
Client
Erasmus MC Programma Integrale Bouw
Team
Aldo Trim, Allard Assies, Antonia Reif, Dikkie Scipio, Eric van Noord, Giuseppe Mazzaglia, Hannes Ochmann, Kees Kaan, Koen van Tienen, Luca Baialardo, Luuk Dietz, Martjan den Hoed, Michael Geensen, Michiel van der Horst, Noëmi Vos, Paolo Faleschini, Raluca Firicel, Renata Gilio, Sebastian van Damme, Shy Shavit, Timo Cardol, Vincent Panhuysen, Virginia Chiappa Nuñez, Walter Hoogerwerf
Photography
Aerophoto Schiphol - Marco van Middelkoop, Sebastian van Damme, Bart Gosselin
General contractor
J.P. Van Eesteren
Construction advisor
Aronsohn Raadgevende Ingenieurs
Mechanical and plumbing engineer
Wolter en Dros
Electrical engineer
Kuijpers
Technical installations advisor
Royal Haskoning
Building physics engineer
DGMR