Skip to content

Netherlands Embassy Mozambique

Location
Maputo, MZ
Typology
Civic
Date
1999–2004
Size
2,510 sqm

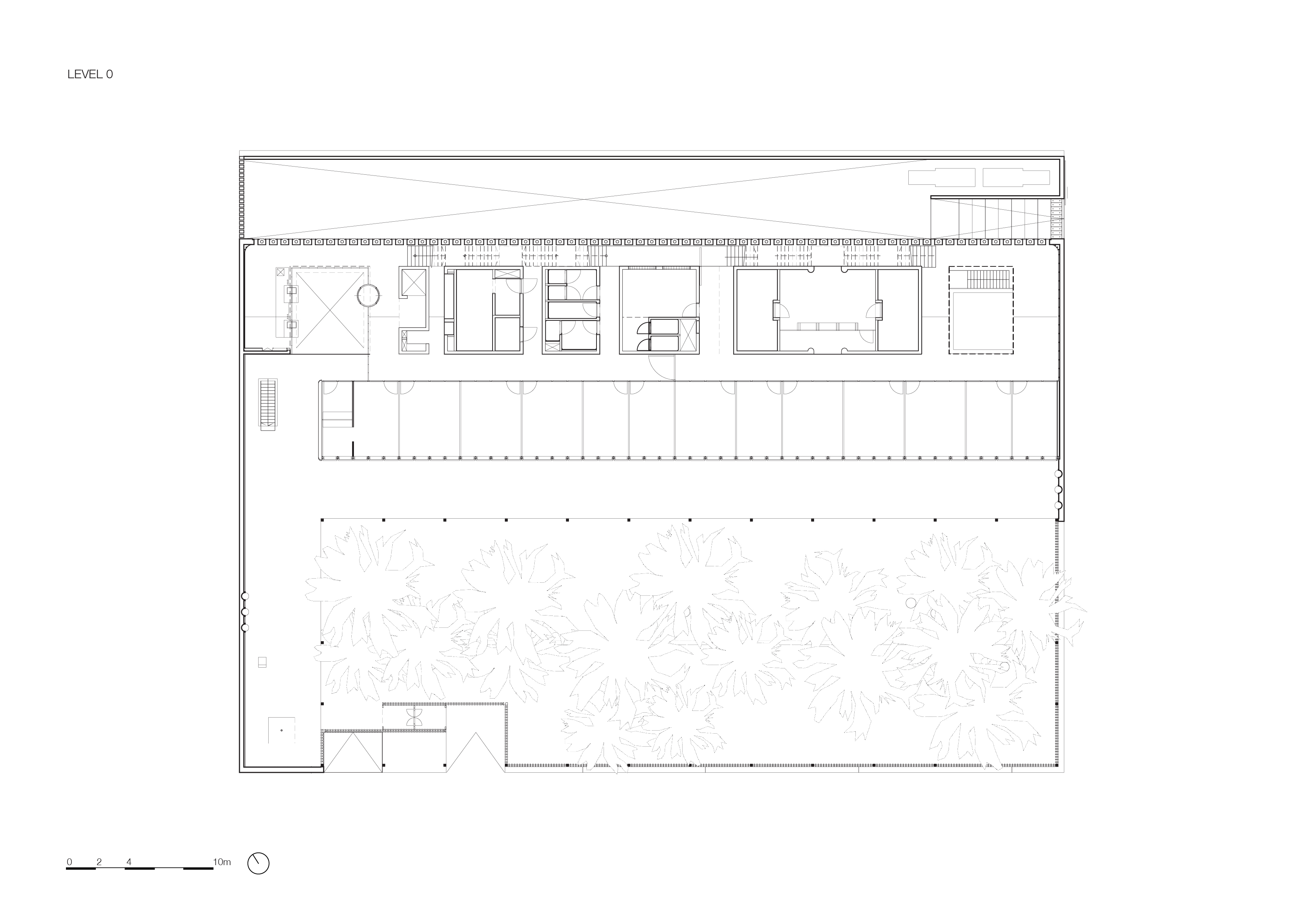
The Netherlands Embassy in Mozambique is located on the outskirts of the country’s capital, Maputo. The building is a rough concrete monolith rising from an L-shaped plan on a gently sloping rectangular plot along a busy avenue. Space has been carved out of the monolith, creating a walled garden in the middle of the plot.

Behind the entrance in the northern corner of the building, three main zones unfold, including a monumental double-height circulation space along the north façade. The ground and first floors house a central area with a library, conference rooms and registry, while the offices face the garden. The building opens up towards the south with a sequence of transparent offices lined with a veranda that allows natural light in, but not heat. The gaps in the fencing allow glimpses into the garden and create a semi-open transition to the street, enhancing the connection with the city.

The Embassy merges with its surroundings by using common local materials: concrete for the façades, enriched with filigree detailing, indigenous wood for the fence, and twelve ornate Poinciana trees planted in the garden.

Info

Location
Maputo, MZ
Date
1999–2004
Size
2,510 sqm
Client
Ministry of Foreign Affairs
Team
Dikkie Scipio, Hannes Ochmann, Kees Kaan, Kim Sneyders, Pasquale Talerico, Patricia Medina Prieto, Sara Martin Camara, Sibil Strauli, Valery Didelon, Vincent Panhuysen
Photography
Christian Richters
General contractor
Concor Moçambique Lda
Structural Engineer
Structural Engineer
Construction advisors
Pieters Bouwtechniek, SKC Engineers, Technica, Carlos Quadros
Installations advisors
Spoormaker & Partners INC, Africon Consulting
Construction managers
EQF Project Managers (Pty) Ltd, SIP Project Managers (Pty) Ltd