Skip to content

Provinciehuis of North Brabant

Location
's-Hertogenbosch, NL
Typology
Civic
Date
2012–2015
Size
28,000 sqm

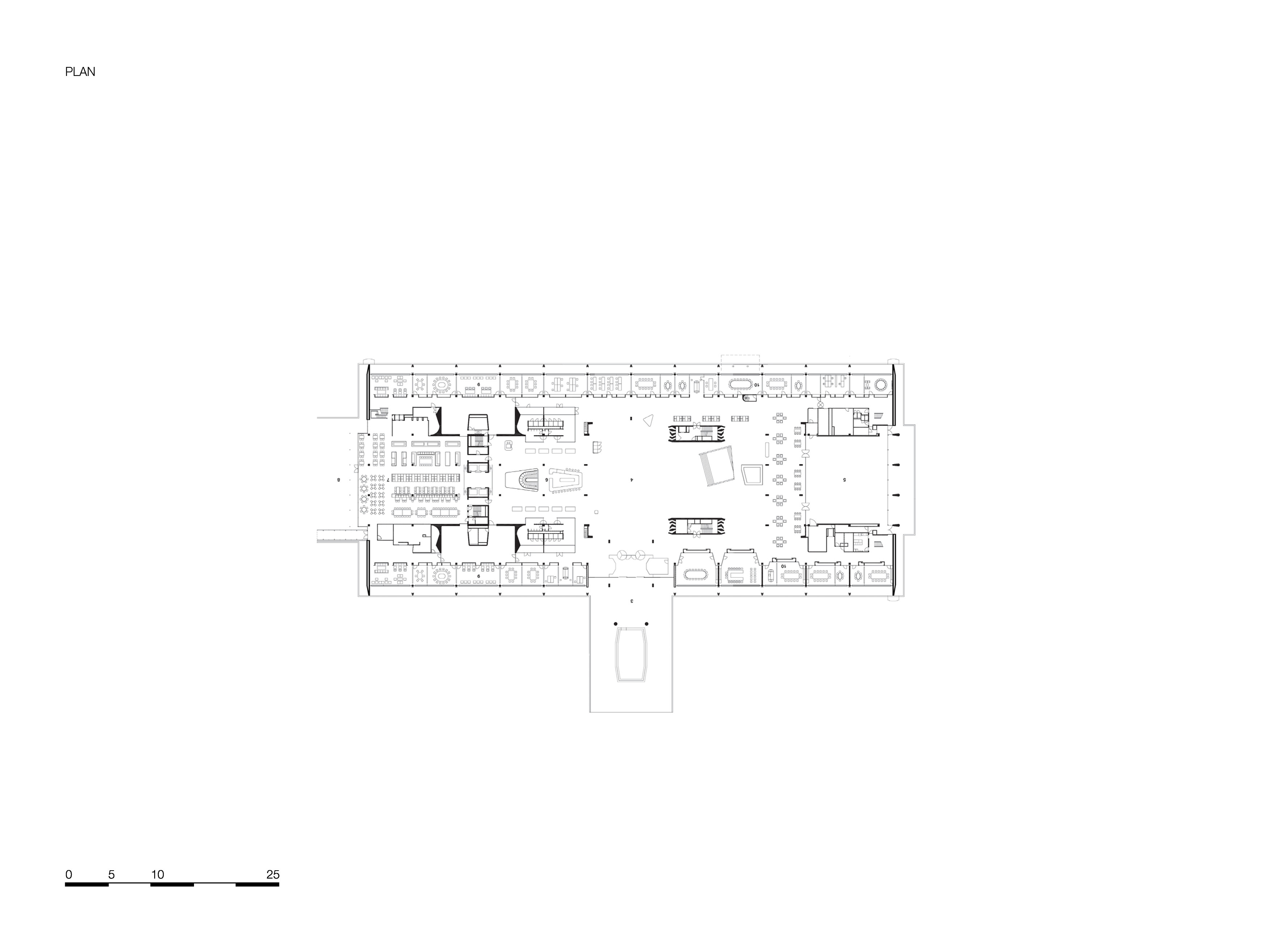
The Provinciehuis of North Brabant, located in the South-East of ‘s-Hertogenbosch, was originally designed in 1971 by Dutch architect Hugh Maaskant. With the modern industrial nature of its concrete architecture, the building quickly became a symbol of active public service as well as a striking landmark of the Brabantse landscape. The strong character of Maaskant’s architecture speaks through generous spaces promoting interaction between politicians, administrators, civil servants and citizens. This interaction was gradually lost overtime.

The challenge of the renovation project was in the correct reading of the original spatial quality of the plan, in freeing the plinth from the security barriers, and in updating the building to the contemporary needs. The intervention achieves an extensive openness of the three levels of the horizontal plinths. In the eighteen-storey office tower the rooms are replaced by a flexible working space and are organized in three-floor clusters. Lifts stop every three floors and two flights of stairs serve each independent cluster.

Info

Location
's-Hertogenbosch, NL
Date
2012–2015
Size
28,000 sqm
Client
Provincie Noord-Brabant
Team
Chiara Gramaccia, Dennis Bruijn, Dikkie Scipio, Hannes Ochmann, Jan Teunis ten Kate, Joeri Spijkers, Kees Kaan, Lorenzo Meschini, Marlon Jonkers, Paolo Faleschini, Raluca Firicel, Vincent Panhuysen
Photography
Sebastian van Damme
General contractor
Stam + De Koning Vastgoed en Bouw
Construction advisor
Advies- en Ingenieursbureau van de Laar
MEP engineer
DWA
Building physics, fire safety and acoustics adviosor
Peutz
Landscape architect
MTD Landschapsarchitecten