Skip to content

Babyn Yar Holocaust Memorial Center

Location
Kyiv, UA
Typology
Culture
Date
2019
Size
13,300 sqm

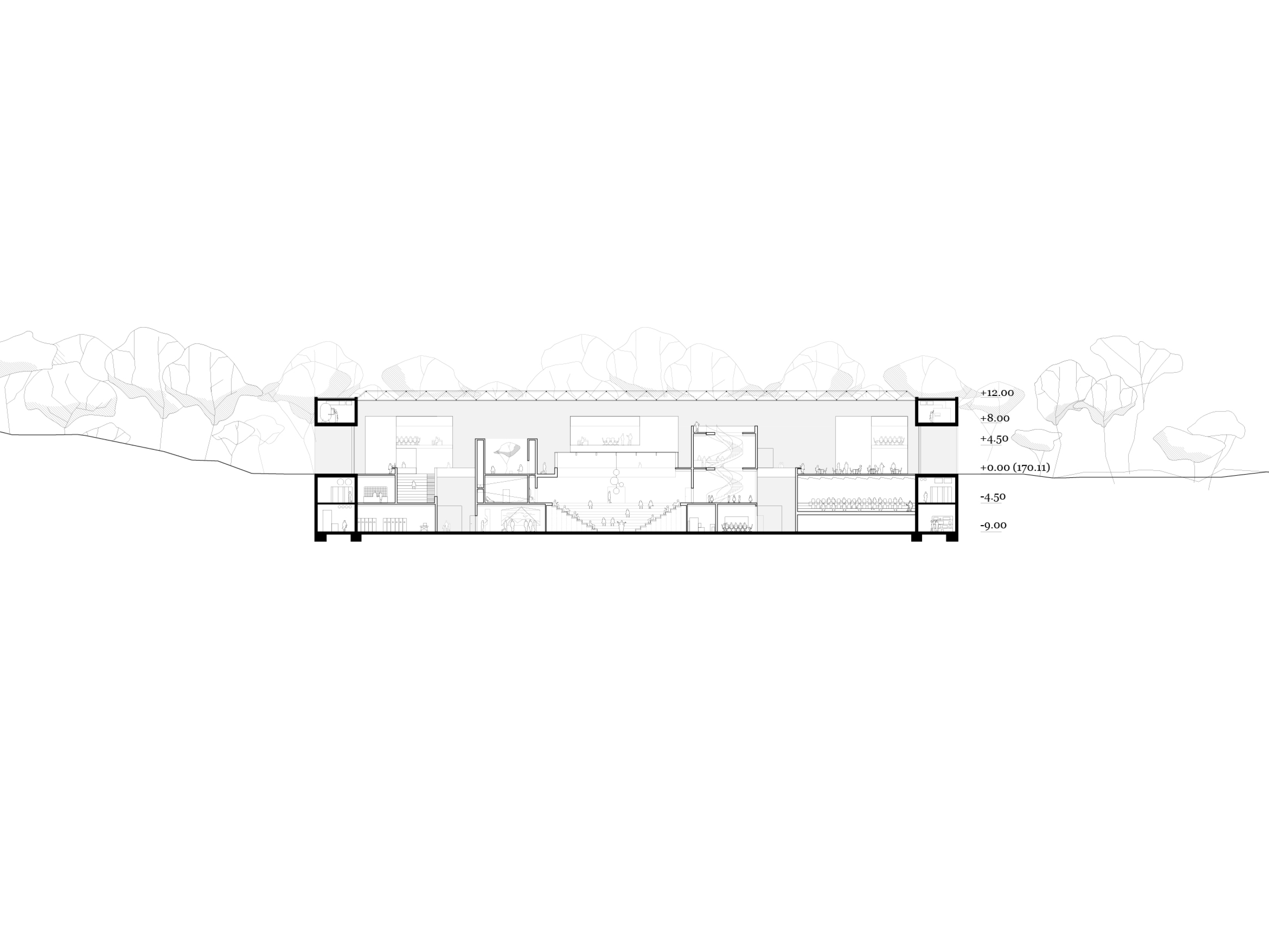
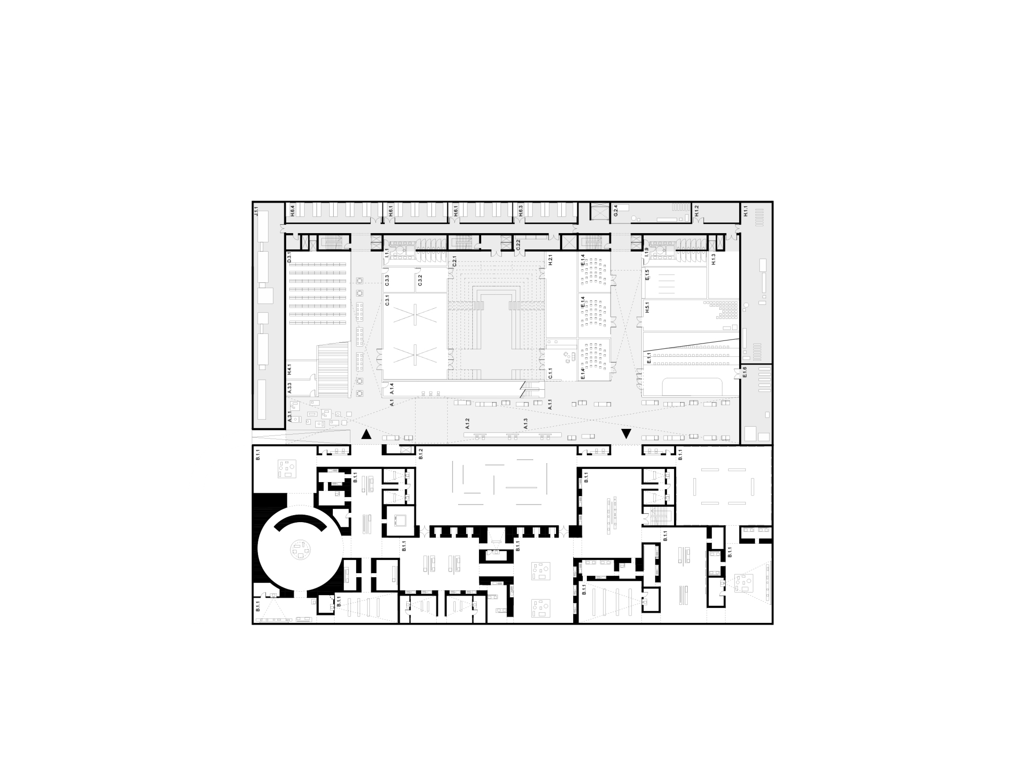
The Babyn Yar Holocaust Memorial Centre is located in Kyiv, near the ravine where the mass shootings occurred in 1941. The layers of history were covered by layers of earth, and the ravine is now a memorial park. The site immerses the visitor in the natural scenography of the woodland, which offers space for reflection on the past and provides a view into the future through the sunlight penetrating the forest. The mass of the building is formed out of a large, solid, and dark volume which sinks into the layers of the historical landscape.

Within the main volume, a sloping landscape of light houses spaces for the production of knowledge. The foyer, placed in the ravine, connects all the functions of the Memorial Centre and creates an active place of encounters, connecting the past and future of the site. It is flanked by exhibition spaces dedicated to the past, and research and learning spaces focused on the future and designed for unearthing, collecting, and sharing new knowledge in the hopes of preserving peace.

Info

Location
Kyiv, UA
Date
2019
Size
13,300 sqm
Client
Babyn Yar Holocaust Memorial Center
Team
Alessandro Arcangeli, Dikkie Scipio, Frane Stancic, Hana Mohar, Jana Culek, Kees Kaan, Nigel Flanagan, Sebastian van Damme, Valentina Bencic, Vincent Panhuysen
Photography
Visualizations: Filippo Bolognese