Skip to content

De Walvis

Location
Amsterdam, NL
Typology
Commercial
Date
2017–2020
Size
10,400 sqm

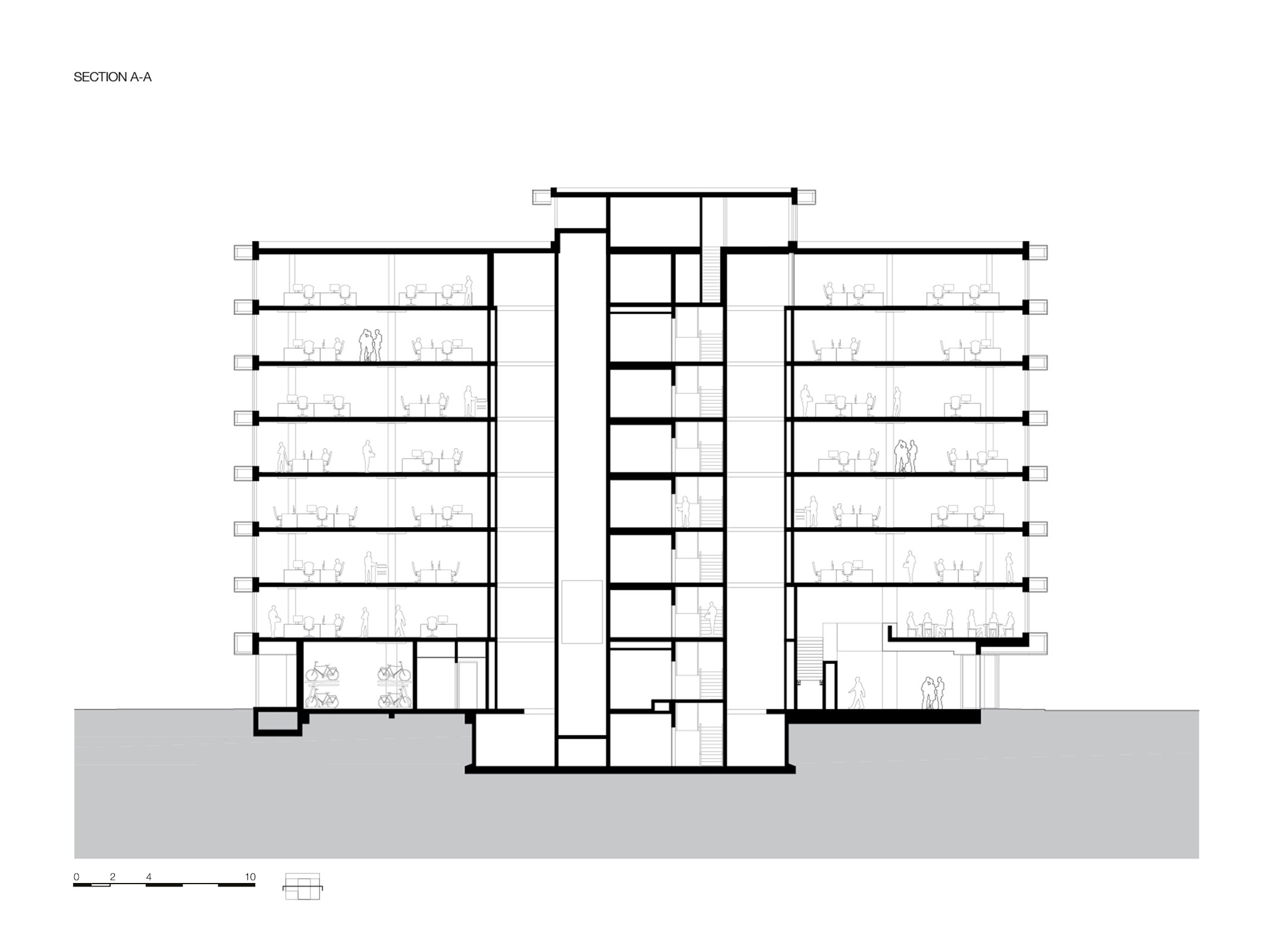
Built in the early 60s, De Walvis (Dutch for ‘the whale’) is the only remaining office building on Bickerseiland in Amsterdam. Although modern at its time, the building no longer complied with modern standards. De Walvis was stripped down to its bones and completely revitalised to accommodate new workspaces for tech and media firms.

The ground floor lobby is set back, seemingly detaching the building from its footing, while the removal of the roof’s heavy entablature lightens the previously pressed-down structure. The stacked floors are optically separated with horizontal bands drawn around the building, extending a metre beyond the original façade. These overhangs appear solid but are light, hollow, metal constructions. Recessed glazing further enhances the effect of ‘floating’ floors, with the windows going from floor to ceiling in almost invisible vertical rebates. Portholes have been incorporated into the glazing in a tight rhythm, referencing the area’s maritime history. The big windows provide views over the neighbourhood and allow daylight to pour in. The result helps de Walvis achieve a new lightness and exuding sustainability, for which the building’s regeneration has been awarded the BREEAM Excellent certificate.

Info

Location
Amsterdam, NL
Date
2017–2020
Size
10,400 sqm
Client
Maarsen Groep
Team
Aldo Trim, Alice Colombo, Andreas Alevras, Christian Sluijmer, Dikkie Scipio, Hana Mohar, Jennifer Nam, Joeri Spijkers, Joost Harteveld, Katarzyna Seweryn, Kees Kaan, Laura Ospina, Michael Geensen, Nicki van Loon, Paolo Faleschini, Rita Alessio, Sebastiaan Buitenhuis, Timo Cardol, Vincent Panhuysen, Ziwei Zhu
Photography
Sebastian van Damme, Dominique Panhuysen
General contractor
Dura Vermeer Onderhoud en Renovatie Midden West
Construction manager
Aronsohn Raadgevende Ingenieurs
Structural engineer
Pieters Bouwtechniek
Technical installations advisor
Huygen Installatie adviseurs
Mechanical and plumbing engineer
Klimaatservice Holland
Electrical engineer
Van den Pol Elektrotechniek
Building physics, fire safety and acoustics advisor
DGMR