Skip to content

De Zalmhaven Towers

Location
Rotterdam, NL
Typology
Residential
Date
2015–2021
Size
49,000 sqm

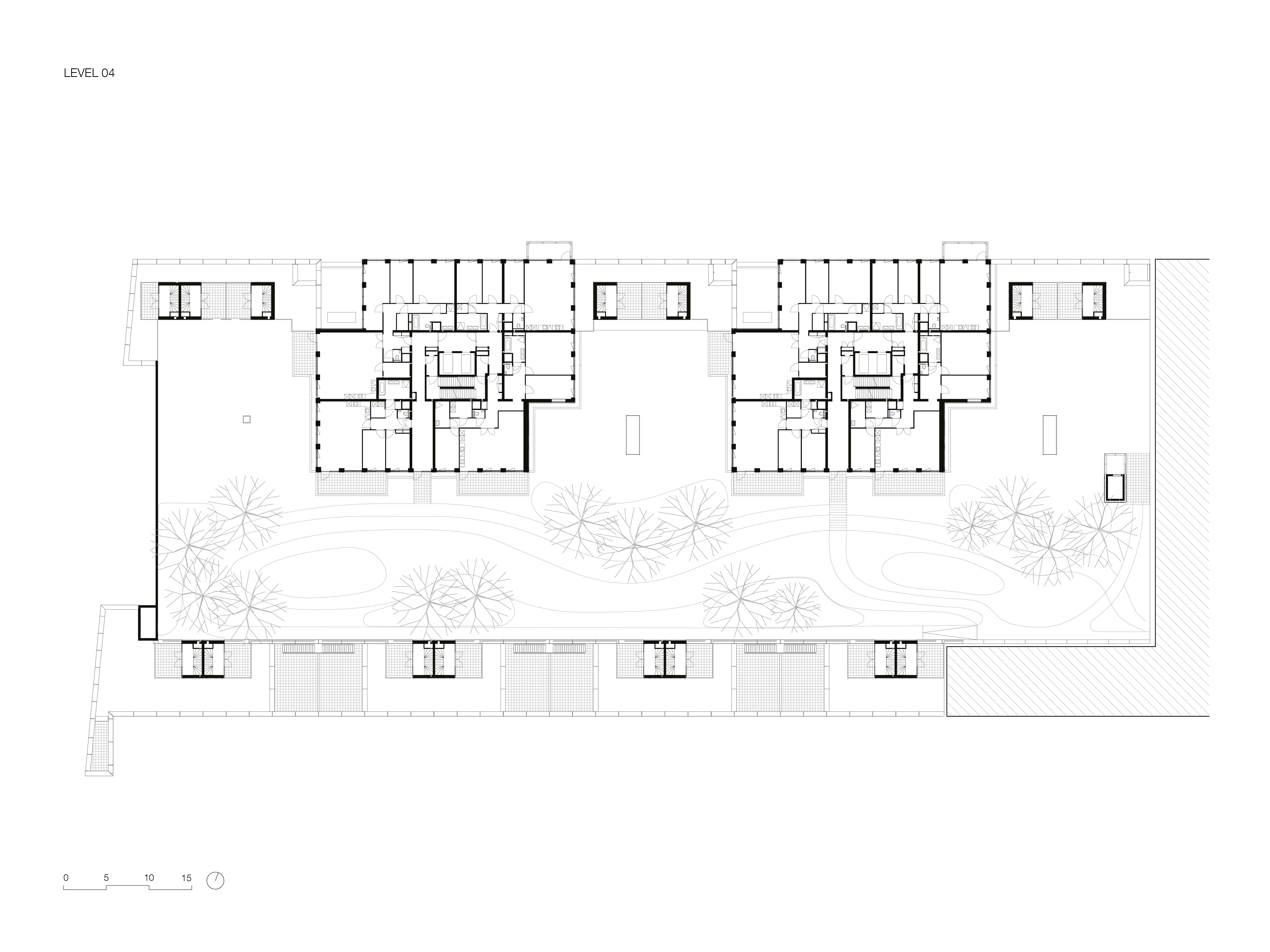
De Zalmhaven is a high-quality residential complex adjacent to the former eponymous port in the centre of Rotterdam. It is comprised of one high-rise by Dam & Partners Architecten and two mid-rise towers sprouting from a sturdy plinth by KAAN Architecten.

The four-story base spans the length of the site and its outer edges are lined with townhouses that preserve the liveliness of the street. A parking garage for the entire complex is hidden at the core of the plinth. The fourth floor garden, accessible to all residents, offers a respite from the dense urban area in the city centre. The two 70-meter-high towers rise from the plinth with a shift along the centreline of the floor plan, giving them a slender angularity and enabling various apartment layouts with impressive views. A uniform, light colour palette and a recognizable façade pattern ensure the overall unity of the ensemble. The grid-like facade draws from the ornately trimmed openings of the area’s neo-classical buildings but gives them a contemporary reinterpretation.

Info

Location
Rotterdam, NL
Date
2015–2021
Size
49,000 sqm
Client
Zalmhaven CV (AM, Amvest)
Team
Aldo Trim, Allard Assies, Cecilia Dobos, Cristina Gonzalo Cuairán, Dikkie Scipio, Floris Sikkel, Jan Teunis ten Kate, Katarzyna Seweryn, Kees Kaan, Maria Stamati, Marlon Jonkers, Michael Baas, Michele Guidobaldi, Niels Vernooij, Paolo Faleschini, Sebastiaan Buitenhuis, Vincent Panhuysen, Wouter Langeveld, Yiannis Tsoskounoglou
Photography
Sebastian van Damme
Architect (high-rise tower)
Dam & Partners Architecten
Architect (mid-rise towers and plinth)
KAAN Architecten
General contractor
Koninklijke BAM Groep
Structural engineer
Zonneveld Ingenieurs, BAM Advies & Engineering
MEP engineer
Techniplan Adviseurs, BAM Advies & Engineering
Building physics, fire safety and acoustics engineer
Petz
Financial advisor
IGG Bointon de Groot
Parking advisor
Omega
Landscape designer
Mostert de Winter
Mechanical engineer
Steboma Ventilatietechniek
Electrical engineer
Bectro Installatietechniek
Plumbing engineer
Giesbers Installatiegroep