Skip to content

JUMP

Location
Paris, FR
Typology
Commercial
Date
2017–2024
Size
20,000 sqm

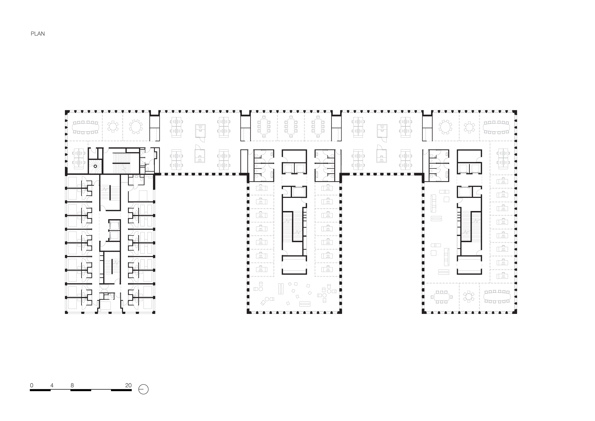
JUMP is located at the intersection of diverse urban areas in Aubervilliers, Paris. Commissioned by Icade, the building connects two green zones, “Place du Front Populaire” and the urban forest of “Parc Icade des Portes de Paris”. With its colossal landing, JUMP has established itself as the central point of convergence in the area. The building integrates a hotel, offices, retail spaces, and parking. The design embraces the area’s eclectic architecture and enhances the dynamism of this urban area served by Metro Line 12.

Offices occupy seven floors within the two southern blocks, while the hotel complex located on the main public square toward the north spreads over nine levels. The retail spaces are distributed along the ground floor, actively participating in the daily life of the public square. The upper floors are enriched with terraces connected to the hotel and the shops. To create a connection between the “Place du Front Populaire” and the south of the lot, two nestled wide patios are created to accommodate greenery. For the office section, the elevation grid provides flexibility for partitioning offices. Precast concrete “T” elements form the building structure and façade, with no cosmetic additions. Large vertical windows define the façades of these different volumes. The hotel is characterised by panoramic windows that amplify the feeling of space inside the rooms. From the “Place du Front Populaire”, ninety travel scenes illuminate the façade of the hotel.

Info

Location
Paris, FR
Date
2017–2024
Size
20,000 sqm
Client
Icade
Team
Aleksandra Gojnic, Alessandro Arcangeli, Beatrice Bagnara, Claudio Zampaglione, Clémence Vallée, Cristina Gonzalo Cuairán, Daniele Dalbosco, Dikkie Scipio, Guilherme Miranda, Jan Teunis Ten Kate, Javier Cuartero, Joeri Spikers, Jorge Correia, Kees Kaan, Louise de Chatellus, Maicol Cardelli, Marylène Gallon, Michael Baas, Nikolina Pavlova, Pauline Trochu, Renata Gilio, Robin Cals, Sophie Ize, Sophie Twarog, Théodossis Montarnier, Vincent Panhuysen
Photography
Schnepp Renou, Sebastian van Damme
Project manager
SCO coordination and MOEX
Construction advisor
EVP
Technical installations advisor and constructor
ALTO
Façade advisor
RFR
Fire safety advisor
CSD Associés
Acoustics advisor
Acoustique & Conseil
Building costs advisor
VPEAS
Landscape designer
BASE
Infrastructure, roads and utilities advisor
ATEVE