Skip to content

Lumière

Location
Rotterdam, NL
Typology
Residential
Date
2018–
Size
49,000 sqm

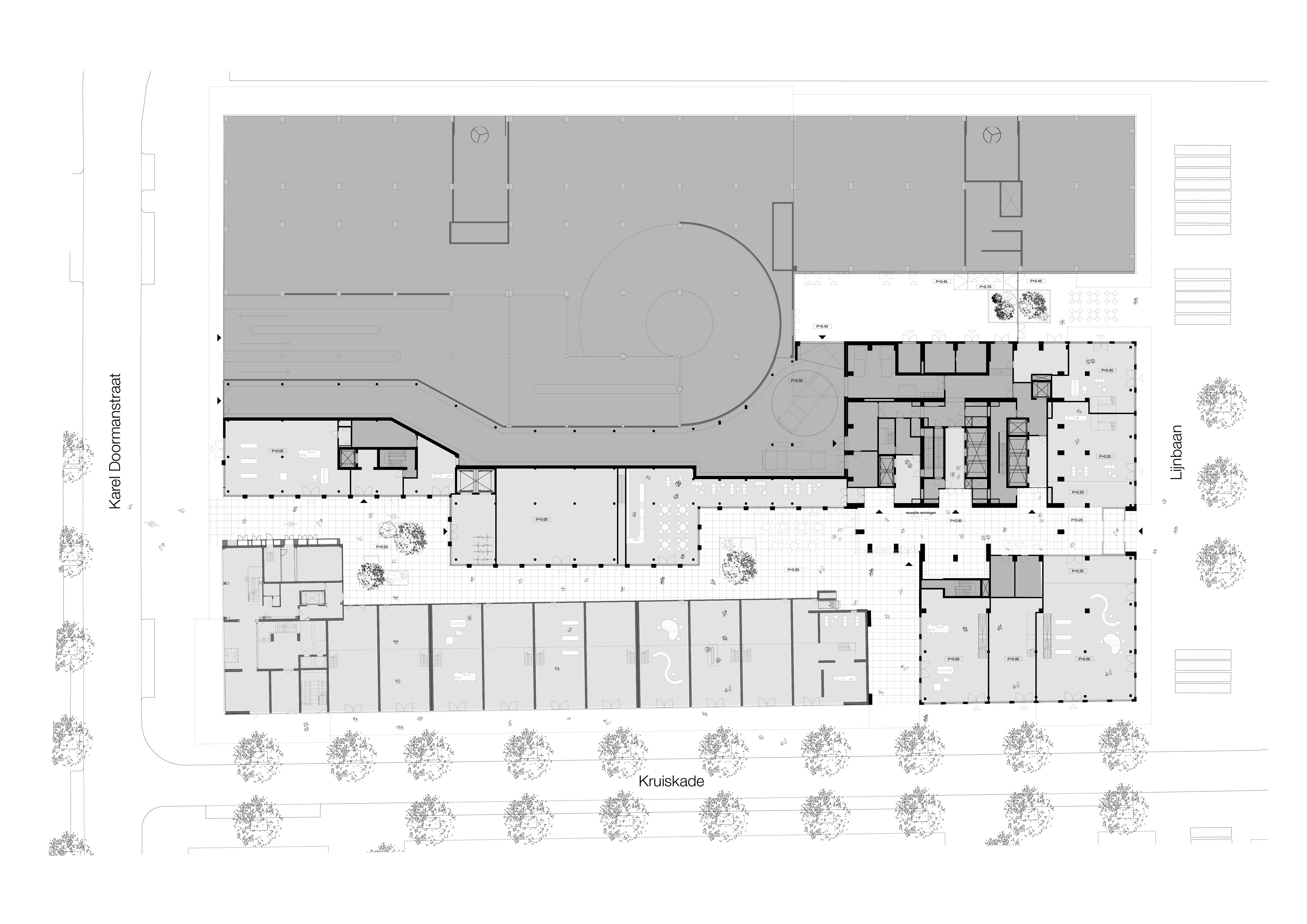
Lumière is an ambitious plan for a 155m tower with a publicly connected and locally integrated plinth. Positioned between the Lijnbaan, Kruiskade, and Karel Doormanstraat, the plinth spreads out to connect with its surroundings, becoming a semi-public city block while keeping the monumental buildings of the Lijnbaan ensemble intact. After slight setbacks in the volume, the tower rises from the base. The sleek natural stone facade increases in transparency towards the top and includes loggias for all apartments. A majestic crown contains penthouses and shared spaces for residents, such as a common living room and winter garden.

Lumière provides a qualitative impulse by combining 263 apartments, a hotel with 160 rooms, shopping, working, and recreation into one mixed-use project. Commercial functions and facilities occupy the ground floor, along with a large atrium at the foot of the tower leading to entrances of the hotel, offices, and apartments. The project transforms the current Lijnbaanhof into an intimate yet lively passage with workspaces, a cafeteria, and other amenities. Green accessible terraces with seating areas and various nesting facilities run along the courtyard and up the tower via the setbacks, embedding the project in the natural environment of Rotterdam.

Info

Location
Rotterdam, NL
Date
2018–
Size
49,000 sqm
Client
Manhave Vastgoed/ VORM Holding
Team
Aldo Trim, Alexandra Klawikowska, Anna Bogucka, Christiaan Frankin, Dikkie Scipio, Jan Teunis ten Kate, Javier Cuartero, Joeri Spijkers, Kees Kaan, Michalina Wawro, Narcisa Ionita, Vincent Panhuysen, Yiannis Tsoskounoglou, Yinghao Lin
Photography
Renders by Vivid Vision