Skip to content

Museum FAMA

Location
Itu, São Paulo, BR
Typology
Culture
Date
2019–2022
Size
15.850 sqm

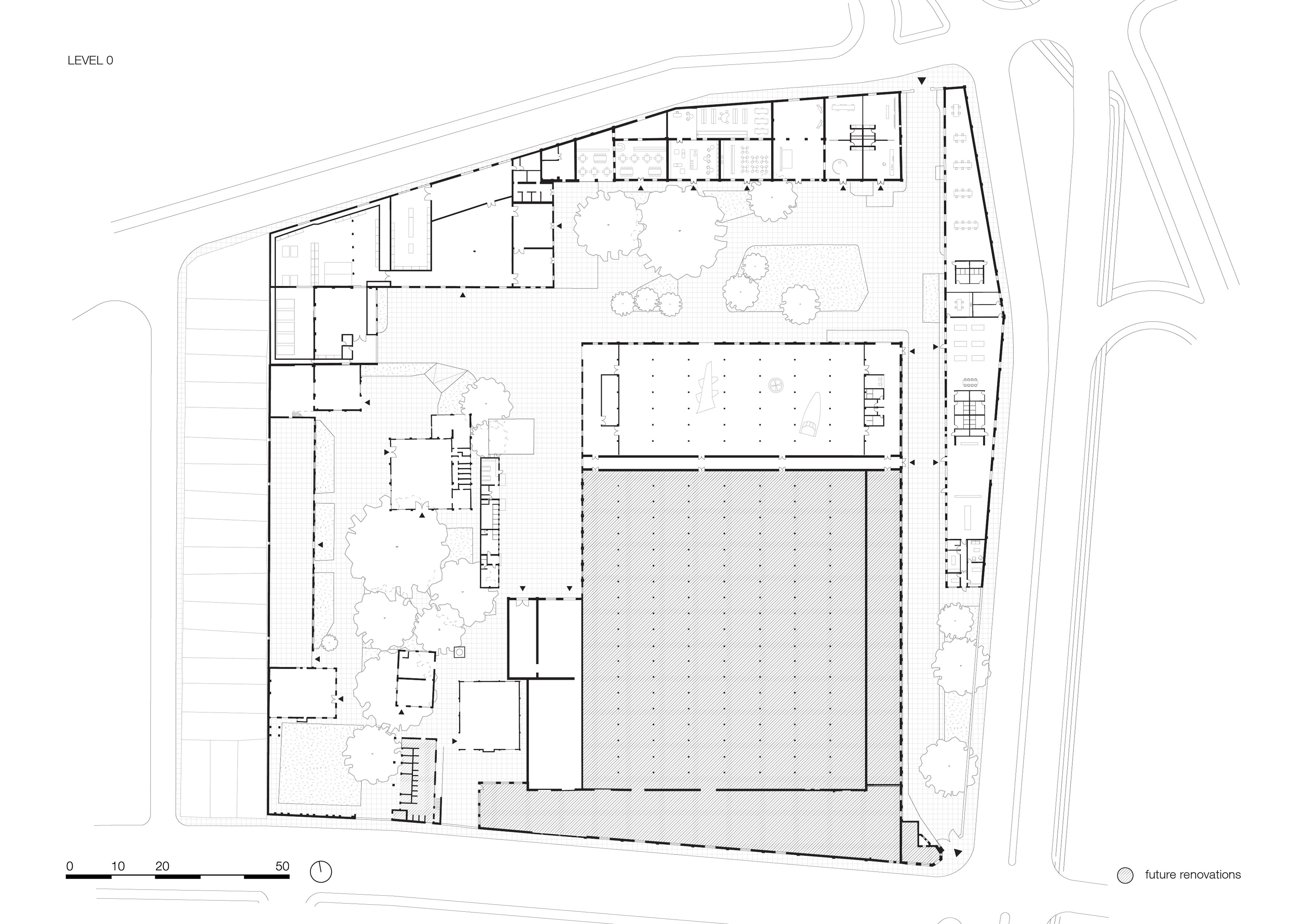
Established in 1911 and designed by French-Brazilian builder Louis Marins Amirat, the São Pedro jeans factory in Itu is a prominent example of early European-influenced industrial architecture in Brazil. After closing in the 1990s, the site was heritage-listed in 2003 and acquired in 2012 by artist and collector Marcos Amaro, who founded FAMA, Fábrica de Arte Marcos Amaro, to transform it into a space for artistic production.

The FAMA project is a long-term initiative focused on creating a vibrant environment for the art community. Over more than six years of careful planning and implementation, it has converted a former industrial site into a lively cultural hub. While 60% of the complex has been carefully restored, the remaining 40% is currently untouched, beautiful in its imperfection and rich in memory. This contrast reflects the project’s defining aspect: its conscious embrace of physical and emotional decay.

Three main approaches guide preservation and reuse: “ Inner volume insertion” introduces a new functional structure within the existing shell, allowing minimal interference with the exterior while reorganising the interior. “Envelope retention with core integration” restores both outer and inner facades and incorporates a new internal core to meet modern needs without compromising the building’s appearance, and the “Structural infilling” adds carefully designed elements that support and reinforce the existing structure, responding to its unique geometry and condition.

Info

Location
Itu, São Paulo, BR
Date
2019–2022
Size
15.850 sqm
Client
Associação para Futura Fundação Marcos Amaro
Team
Carlos Jacquet, Danielle Gregorio, Dikkie Scipio, Juliana Generoso, Kees Kaan, Laís Oliveira Xavier, Marco Peixe D’Elia, Raluca Firicel, Renata Gilio, Ricardo Marmorato, Vincent Panhuysen
Photography
Sebastian van Damme
Local architect
UrbSP
Restoration advisor
Vinicius Martins de Oliveira and Jéssica Aparecida de Paula, São Paulo, Brazil for KAAN Architecten