Skip to content

Rietlanden Housing

Location
Amsterdam, NL
Typology
Residential
Date
1996–2001

This project was originally designed by Claus en Kaan Architecten.


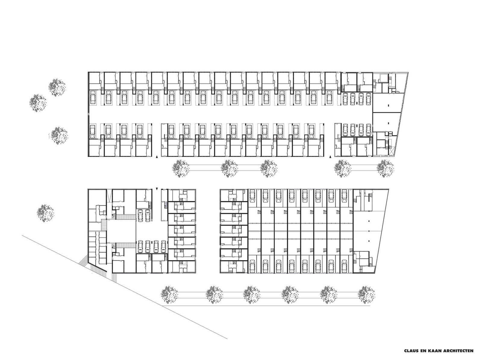
Rietlanden, part of the Borneo Sporenburg urban development plan, is an urban microcosm. The architecture is remarkably varied, with different types of apartments offering a range of residential categories at various price points. Dwellings are arranged in three blocks and organized in two rows. The glass and the aluminium frame of the windows, which stand out prominently from the surface of the façade, define the overall aesthetic. The large glass surfaces establish a direct relationship between the homes and the street.

In their extroversion, these apartments are the very opposite of the generally inward-looking dwellings of Borneo Sporenburg. The buildings are a contemporary echo of the speculative architecture of the 19th century, when individual apartments were pushed together into urban blocks. The prototype structure for the Rietlanden is the veranda house, named after its inner terrace and veranda on the upper floor.

Info

Location
Amsterdam, NL
Date
1996–2001
Client
De Principaal
Team
Dikkie Scipio, Dirk Müller, Jan Bekkering, Kees Kaan, Manou Huijbregts, Michiel Janssen, Siebolt Nijenhuis
Photography
Luuk Kramer
Contractor
Dura Bouw Amsterdam
Construction manager
Adams Adviesbureau
Advisors
T+H Adviesbureau Nieman, Swets en van Voorde