Skip to content

de Bijenkorf store

Location
Amsterdam, NL
Typology
Commercial
Date
2012–2016
Size
4,300 sqm

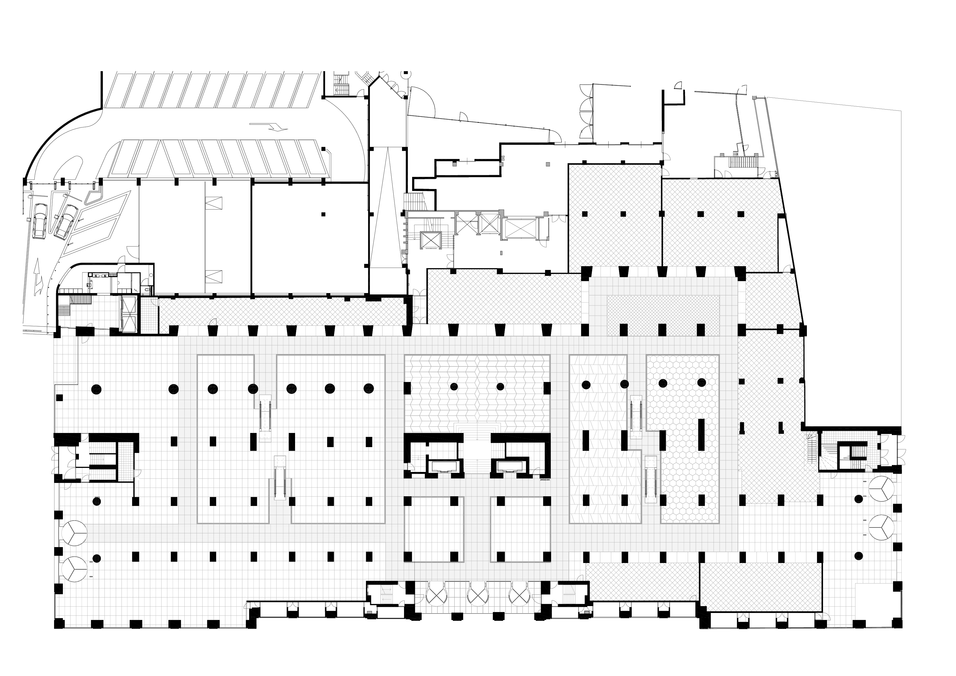
De Bijenkorf is the primary reference for any retail experience in the Netherlands, with each department store housed in a historical or architectural landmark across the country. The Amsterdam flagship store, designed in 1914 by J.A. van Straaten, is located at the very heart of the city, between Dam Square, Damrak, and Beursplein. The restoration of the building’s strong character both reinforces its identity and supports a future-proof framework on which to build. It also underscores De Bijenkorf’s strategy of offering a high quality and luxurious retail experience.

The building’s position on a central axis through Amsterdam, the Damrak, called for the revitalization of the entrances along this corridor, so that all three points of entry have the same stature. On the Dam side, a new escalator liberates the monumental staircase. This intervention, visible in the different columns and ceiling shapes, marks a new phase in the history of the department store. Altogether, the renovation ensures a better readability of the original structure and space, and provides a better orientation to navigate within the building.

Info

Location
Amsterdam, NL
Date
2012–2016
Size
4,300 sqm
Client
de Bijenkorf
Team
Allard Assies, Cristina Gonzalo Cuairán, Dennis Bruijn, Dikkie Scipio, Edwin Veth, Joeri Spijkers, Kees Kaan, Loes Martens, Maurizio Papa, Michael Geensen, Paolo Faleschini, Raluca Firicel, Robbert Peters, Timo Cardol, Vincent Panhuysen
Construction advisor
ABT
MEP engineer
Huygen installatie
Fire safety engineer
Bureau Veldweg