Skip to content

Holocaust Museum

Location
Mechelen, BE
Typology
Culture
Date
2007
Size
6,500 SQM

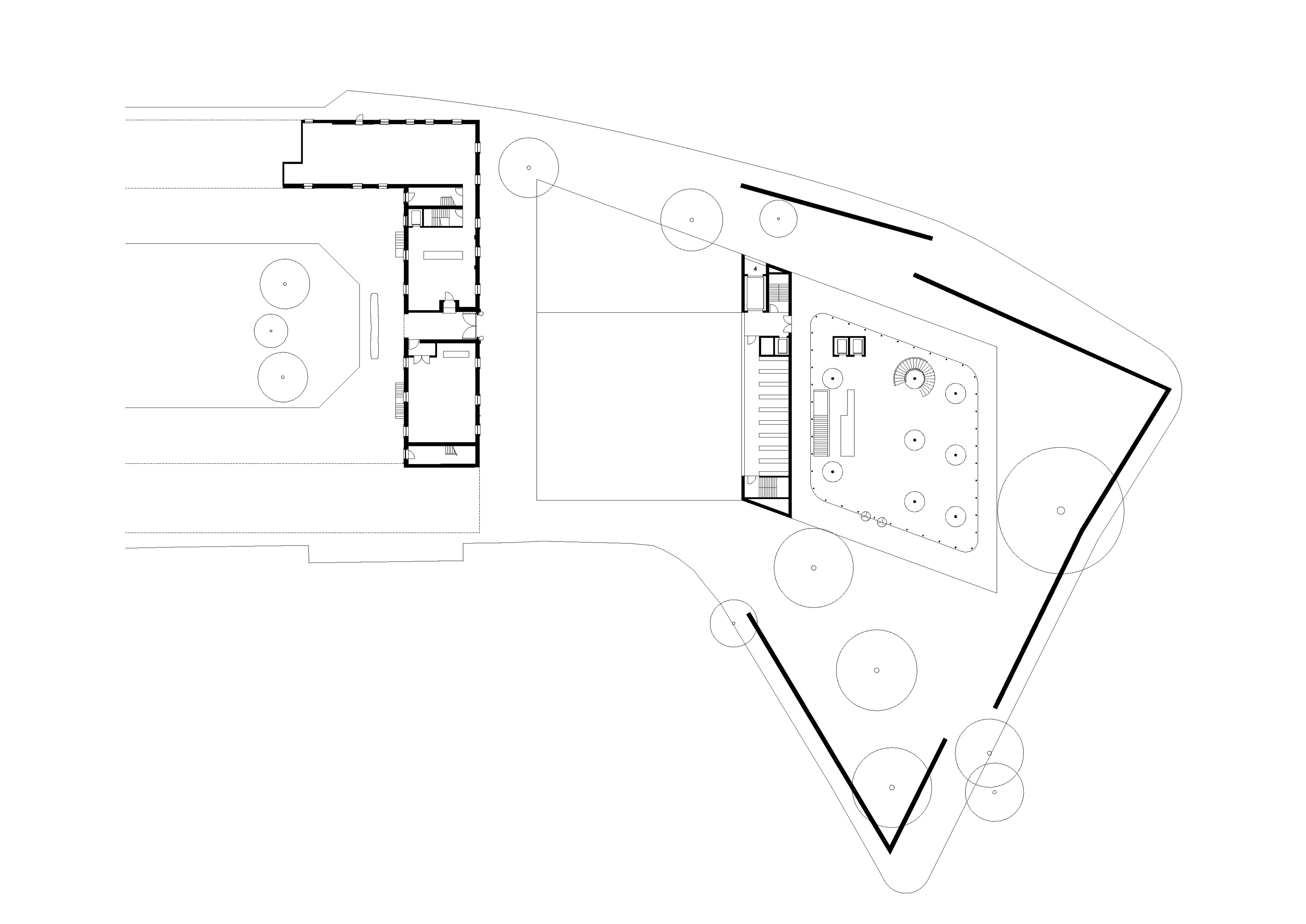
The importance of the chosen site is the historical fact that it is the exact place where 25,267 people have been deported to Auschwitz. Between the summer of 1942 and the summer of 1944, 28 transports left the Goswin de Stassartstraat right in front of the kazerne Dossin. Our memory is inaccurate and deceiving. Our knowledge of the Belgian Case is indebted to the German administration that provided us with clear facts. The essence of the project is the presence of the depot on exactly this site. Together they form the memorial and the centre of the museum.

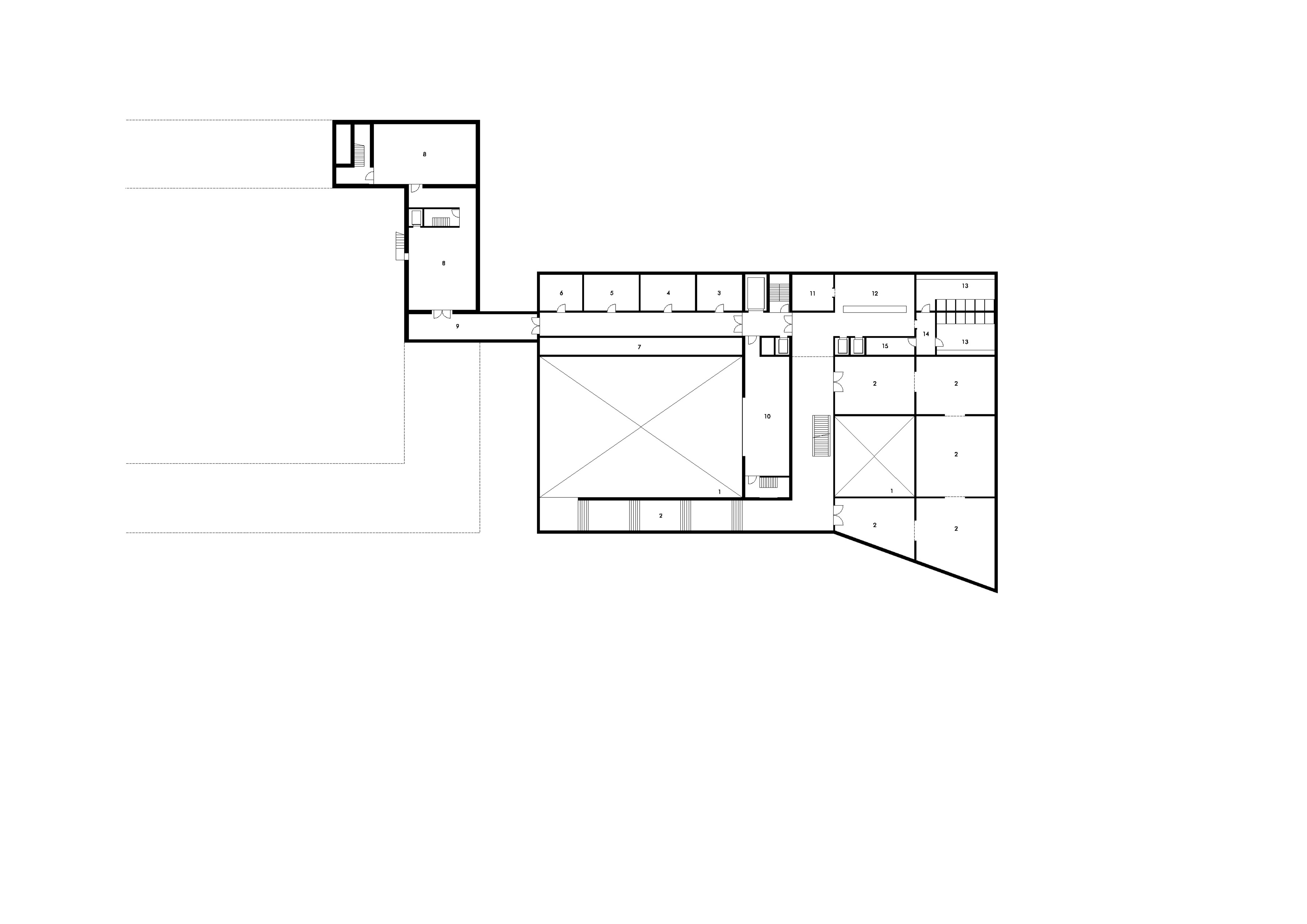
The museum is organized around the depots. Confrontational exhibition spaces are located underground, whilst a room for contemplation is situated at the garden site above which one can find a conference floor. The division of the site by the Goswin de Stassartstraat is neither a symbolic nor a practically well-chosen solution for the museum. In order to preserve the real deportation site the borderline of the 'arresthuis' is maintained by the depot but traffic is relocated.

Info

Location
Mechelen, BE
Date
2007
Size
6,500 SQM
Client
Flemish Government
Team
Aksel Çoruh, Alice Bulla, Dario Fernandez, Dikkie Scipio, Katrien van Dijk, Kees Kaan, Paolo Faleschini, Raluca Firicel, Sebastian van Damme, Yaron Tam
Building physics engineer
Royal Haskoning Rotterdam
Construction advisor
Pieters Bouwtechniek Delft BV
Financial advisor
Bouwkostenadvies T.M. Laan
Landscape architect
Piet Oudolf