Skip to content

Kunstsite Bruges

Location
Bruges, BE
Typology
Culture
Date
2019–2020

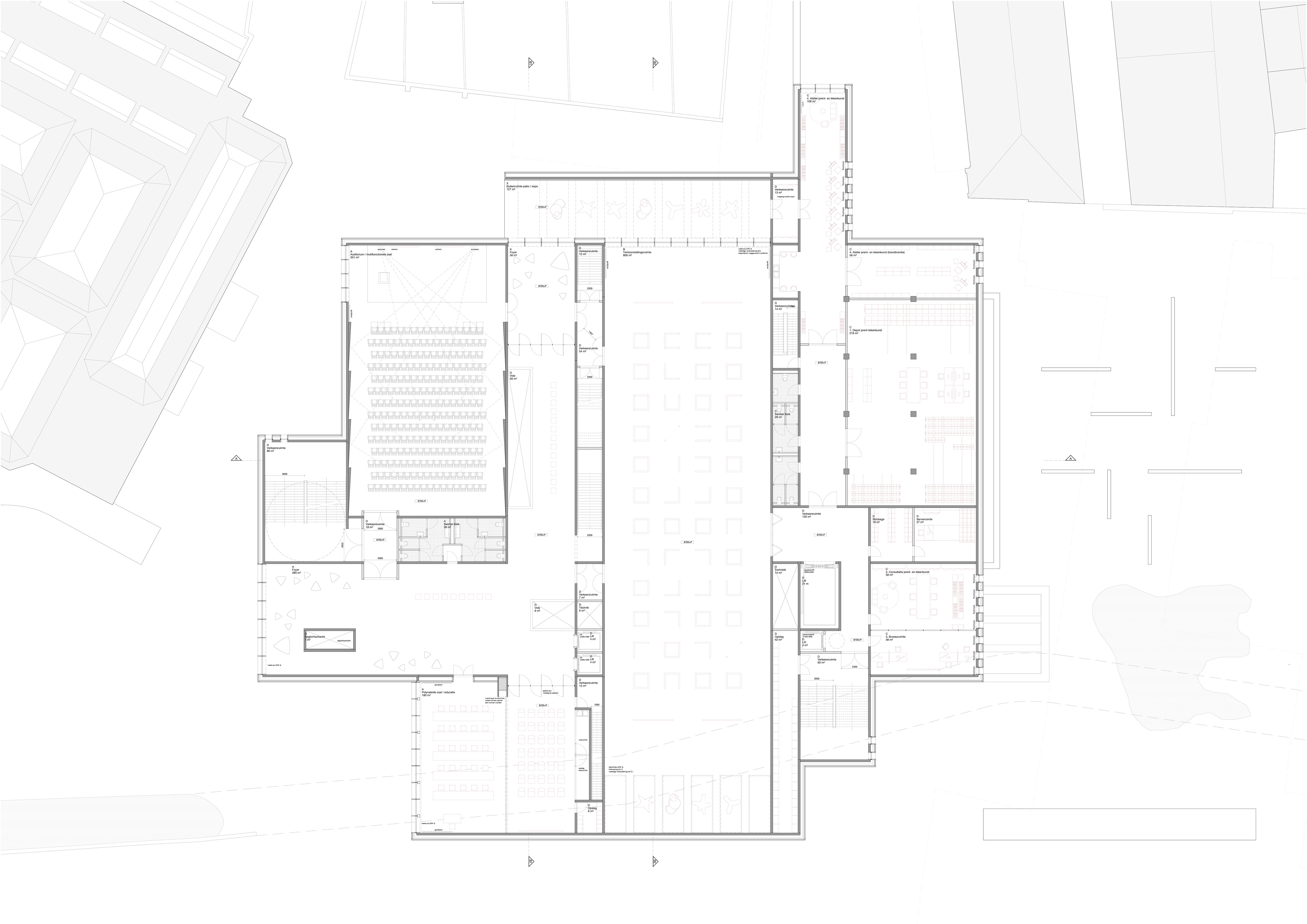
The new museum in Bruges is carefully integrated into the historic city, where brick, natural stone, and a lively roofscape define the character. The site, a secluded inner garden, forms a green oasis within the dense urban fabric. The design blends seamlessly with the garden through its transparent ground floor, while the façades, set at a slight angle, connect with Bruges’ roofscape. The architecture emphasises openness and orientation. Carefully placed openings frame important city views, while the southeast-facing entrance allows visitors to approach the museum through a sequence of lush gardens. From the first floor, the building opens toward Bruges’ iconic rooftops, reinforcing its dialogue with the historic skyline.

At the same time, the museum is conceived as a welcoming public space. The double-height foyer serves as the heart, linking the museum shop, café, terrace, and auditorium. Multiple entrances accommodate both individual visitors and groups, while a discreet logistics zone ensures smooth operations. Above, the stacked exhibition halls offer flexibility, culminating in a spacious upper gallery. The building’s organisation balances public experience with efficiency: behind the scenes, depots, restoration areas, and logistics are optimally arranged. In this way, KUS becomes a distinctive, contemporary architectural landmark that both respects and enriches Bruges’ historic character.

Info

Location
Bruges, BE
Date
2019–2020
Team
Aleksandra Domian, Anna Pach Rudnicka, Dennis Bruijn, Dikkie Scipio, Edyta Milczarek, Florian Heinz, Giacomo Rizzi, Kees Kaan, Loes Martens, Mihai Turtoi, Nigel Flanagan, Vincent Panhuysen
Contractor
Besix
Construction advisor
Arcadis
Acoustics advisor
Tractebel
Visualizations
PF Visual