Skip to content

St.Jacques-de-la-Lande Housing

Location
Rennes, FR
Typology
Residential
Date
2004–2011
Size
25,000 sqm

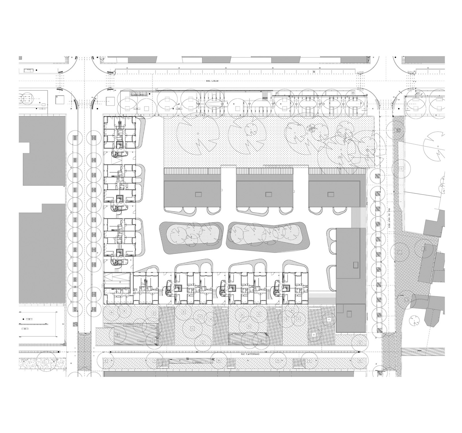
In Saint-Jacques-de-la-Lande, a 200-unit apartment complex was designed for the ZAC de la Morinais area to align with the master plan originally developed by Jean-Pierre Pranlas-Descours. The layout of private and public areas provides functional versatility and social diversity within the city.

The project aligns itself with the main axes through the neighbourhood, which facilitates a beneficial exchange between the public and private spaces. The white facades of the buildings on the street side help to integrate the development into the area. Metal balustrades, a particularly French feature, strictly adhere to the lines of the concrete structure, ensuring the unity of the design as a whole and providing a dynamic grandeur and expressivity. The brown façades of the islands have a more domestic character and assert their difference and originality through colour contrast, creating legible individual dwellings on the courtyard side.

Info

Location
Rennes, FR
Date
2004–2011
Size
25,000 sqm
Client
Societé Nationale Immobilière (SNI), CAPRI Atlantique
Team
Dikkie Scipio, Kees Kaan, Laurent Gravier, Leo Harders, Marylène Gallon, Pier Dijkema, Vincent Panhuysen
Photography
Christian Richters
Urban plan
Pranlas-Descours Architect & Associates (PDAA)
Landscape
Atelier Bruel - Delmar Paysagistes
Local architect
FRES architectes
Construction advisor
Cabinet Ollivier
Building physics, fire safety, acoustics, MEP engineer
Cabinet Ollivier