Skip to content

Van Schaik Company Premises

Location
Breukelen, NL
Typology
Commercial
Date
1996–2000
Size
1,620 sqm

This project was originally designed by Claus en Kaan Architecten.


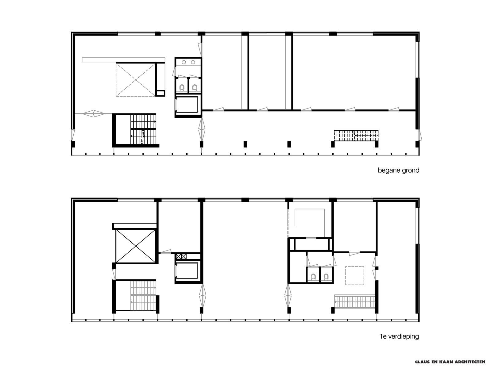
The Van Schaik Company Premises consists of two orthogonal volumes that turn their backs on a clutter of outlying sheds. One volume is for storage and the other is for offices. The latter has two facades: a closed one that faces onto the car park and a glazed south-facing façade that overlooks the work yard. Behind this glass screen is a double-height gallery that gives access to the offices.

The car park is a clean and open service space. The two buildings of the premises are a linguistic and compositional ensemble: the glazed façade of the office is imprinted with the company’s name, while its field of operation – bouwbedrijf – is in relief on the concrete wall of the warehouse. The lettering, incorporated into the façade, ensures that no illuminated signs or neon letters disrupt the architectural order. The design effectively represents the company through its volumes rather than through iconic formalism.

Info

Location
Breukelen, NL
Date
1996–2000
Size
1,620 sqm
Client
Bouwbedrijf Van Schaik
Team
Dikkie Scipio, Felix Claus, Jan Jonkers, Kees Kaan, Marc van Broekhuijsen
Photography
Michel Claus
Contractor
Bouwbedrijf Van Schaik
Construction advisor
Bureau Mulders
MEP engineer
Mandjes Installatietechniek